Skip To Content

7037 Cinnamon Dr

Conway, SC 29526
  • $501,020
  • STATUS: Active Under Contract
  • ON SITE: 37 Days
  • MLS #: 2603059
Under Contract
UPDATED: 82 min ago
$501,020
  • 5
    BEDS
  • 0.27
    ACRES
  • 3
    BATHS
  • 1
    1/2 BATHS
  • 2,966
    SQFT
  • $169
    $/SQFT
Neighborhood:
Type:
Single-Family Home
Built:
2026
County:

School Information

Description

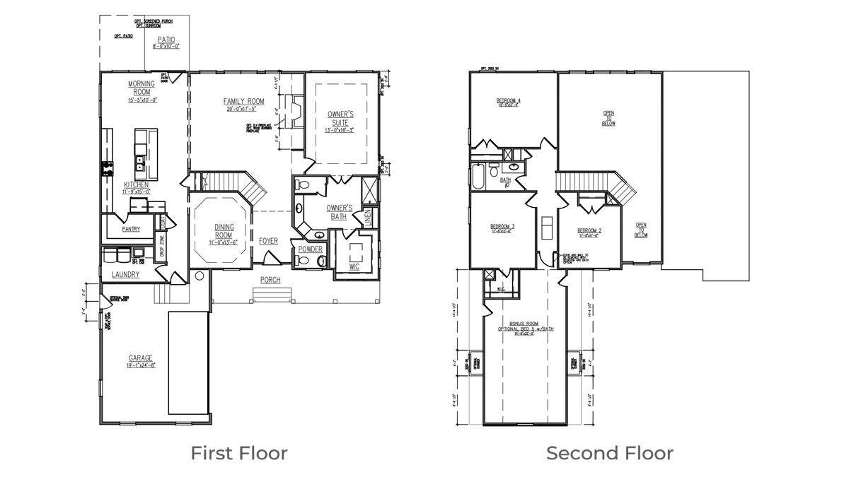
Welcome to The Alder, a stunning 2-story, 5-bedroom, 3.5-bathroom home designed to impress with thoughtful details, elegant finishes, and exceptional functionality. With beautiful curb appeal and a distinctive side-load 2-car garage, this home makes a lasting first impression. Step through the front door into an elegant foyer that flows into a formal dining room featuring a sophisticated tray ceiling—perfect for entertaining guests or hosting holiday dinners. The heart of the home is the expansive open-concept living area where the family room, morning room, and gourmet kitchen seamlessly connect. Soaring two-story ceilings in the great room flood the space with natural light, creating an inviting and airy atmosphere. The chef’s kitchen is a dream come true, complete with a large island and breakfast bar, quartz countertops, sleek 36" cabinetry, gourmet stainless steel appliance package, and a generous walk-in pantry for all your storage needs. A luxurious retreat, the first-floor primary suite boasts a tray ceiling, spacious walk-in closet, and spa-inspired ensuite bath featuring dual vanities, a separate linen closet, a 5' tile shower, and a private water closet. Convenience is key with a spacious first-floor laundry room and a convenient powder room. Upstairs, you'll find four additional bedrooms and two full bathrooms, all accessed by an open staircase with iron pickets that enhances the home’s refined character. Enjoy outdoor living year-round with a serene screened-in back porch off the morning room—ideal for relaxing mornings or peaceful evenings. The Alder perfectly blends luxury, comfort, and modern living in a timeless design that feels like home from the moment you walk in. Smart living is standard in The Alder. This is America’s Smart Home, equipped with an industry-leading smart home package. Control your thermostat, front door lock and light, and video doorbell all from your smartphone, wherever you are. *Photos are of a similar Alder home. (Home and community information, including pricing, included features, terms, availability and amenities, are subject to change prior to sale at any time without notice or obligation. Square footages are approximate. Pictures, photographs, colors, features, and sizes are for illustration purposes only and will vary from the homes as built. Equal housing opportunity builder.)

Monthly Payment Calculator



Coastal Carolina Association of Realtors logo© 2026 Coastal Carolinas Association of REALTORS® MLS. All rights reserved. IDX information is provided exclusively for consumers' personal, non-commercial use and may not be used for any purpose other than to identify prospective properties consumers may be interested in purchasing. Information is deemed reliable but is not guaranteed accurate by the MLS or Jerry Pinkas Real Estate Experts, Inc. The data relating to real estate for sale or lease on this web site comes in part from CCAR. Real estate listings held by brokerage firms other than Jerry Pinkas Real Estate Experts, Inc are marked with the CCAR logo or an abbreviated logo and detailed information about them includes the name of the listing broker. Data last updated: 2026-03-14T07:21:36.567.
www.homeguidemyrtlebeach.com/homes/172723833
Print Image

7037 Cinnamon Dr Conway, SC 29526

  • Price: $501,020
  • Status: Active Under Contract
  • On Site: 37 Days
  • Updated: 82 min ago
  • MLS #: 2603059
5
Beds
3
Baths
1
½ Baths
0.27
Acres
2,966
SQFT
$169
$/SQFT
2026
Built
Neighborhood:
Auberon Woods
County:
Horry
Area:
10A Conway To Myrtle Beach Area--Between 90 & Waterway Redhill/Grande Dunes
Elementary School:
Waccamaw Elementary School
Middle School:
Black Water Middle School
High School:
Carolina Forest High School
Property Description
Welcome to The Alder, a stunning 2-story, 5-bedroom, 3.5-bathroom home designed to impress with thoughtful details, elegant finishes, and exceptional functionality. With beautiful curb appeal and a distinctive side-load 2-car garage, this home makes a lasting first impression. Step through the front door into an elegant foyer that flows into a formal dining room featuring a sophisticated tray ceiling—perfect for entertaining guests or hosting holiday dinners. The heart of the home is the expansive open-concept living area where the family room, morning room, and gourmet kitchen seamlessly connect. Soaring two-story ceilings in the great room flood the space with natural light, creating an inviting and airy atmosphere. The chef’s kitchen is a dream come true, complete with a large island and breakfast bar, quartz countertops, sleek 36" cabinetry, gourmet stainless steel appliance package, and a generous walk-in pantry for all your storage needs. A luxurious retreat, the first-floor primary suite boasts a tray ceiling, spacious walk-in closet, and spa-inspired ensuite bath featuring dual vanities, a separate linen closet, a 5' tile shower, and a private water closet. Convenience is key with a spacious first-floor laundry room and a convenient powder room. Upstairs, you'll find four additional bedrooms and two full bathrooms, all accessed by an open staircase with iron pickets that enhances the home’s refined character. Enjoy outdoor living year-round with a serene screened-in back porch off the morning room—ideal for relaxing mornings or peaceful evenings. The Alder perfectly blends luxury, comfort, and modern living in a timeless design that feels like home from the moment you walk in. Smart living is standard in The Alder. This is America’s Smart Home, equipped with an industry-leading smart home package. Control your thermostat, front door lock and light, and video doorbell all from your smartphone, wherever you are. *Photos are of a similar Alder home. (Home and community information, including pricing, included features, terms, availability and amenities, are subject to change prior to sale at any time without notice or obligation. Square footages are approximate. Pictures, photographs, colors, features, and sizes are for illustration purposes only and will vary from the homes as built. Equal housing opportunity builder.)
Exterior Features

Architectural Style Traditional Attached Garage YN Yes Construction Materials Hardi Plank Type Masonry Wood Frame Door Features Insulated Doors Exterior Features Porch Foundation Details Slab Garage YN Yes Parking Features Attached Garage Two Car Garage Garage Door Opener Parking Total 4 Patio And Porch Features Rear Porch Front Porch Porch Screened Pool Features Community Outdoor Pool Property Attached YN No

Interior Features

Appliances Dishwasher Disposal Microwave Range Cooling Central Air Cooling YN Yes Flooring Carpet Luxury Vinyl Luxury Vinyl Plank Furnished Unfurnished Heating Central Electric Heating YN Yes Interior Features Split Bedrooms Breakfast Bar Bedroom on Main Level Entrance Foyer Kitchen Island Stainless Steel Appliances Solid Surface Counters Laundry Features Washer Hookup Levels Two Rooms Primary Bathroom (Dual SinksSeparate ShowerVanity) Kitchen (Breakfast BarKitchen IslandPantryStainless Steel AppliancesSolid Surface Counters) Great Room Family Room (Vaulted Ceiling(s)) Dining Room (Tray Ceiling(s)Separate/Formal Dining Room) Bedroom 3 (Second Level) Bedroom 2 (Second Level) Other (Bedroom on Main LevelEntrance FoyerUtility Room) Primary Bedroom (First Level Tray Ceiling(s)Linen ClosetMain Level MasterWalk-In Closet(s)) Bedroom 1 (Second Level)

Property Features

Association Amenities Owner Allowed Golf Cart Tenant Allowed Golf Cart Association Fee 95 Association Fee Frequency Monthly Association Fee Includes Association Management Common Areas Pool(s) Association YN Yes Builder Model Lot 359- Alder C Builder Name DR Horton Community Features Golf Carts OK Long Term Rental Allowed Pool Green Energy Efficient Doors Windows Home Warranty YN Yes Lease Considered YN No Listing Terms Cash Conventional FHA VA Loan Location Property Condition Under Construction Property Sub Type Detached Property Sub Type Additional Detached Security Features Smoke Detector(s) Special Listing Conditions None Utilities Cable Available Electricity Available Phone Available Sewer Available Underground Utilities Water Available Water Source Public Zoning res

Coastal Carolina Association of Realtors logo Listing information © 2026 Coastal Carolinas Association of REALTORS® MLS. Listing provided by DR Horton:.


Coastal Carolina Association of Realtors logo© 2026 Coastal Carolinas Association of REALTORS® MLS. All rights reserved. IDX information is provided exclusively for consumers' personal, non-commercial use and may not be used for any purpose other than to identify prospective properties consumers may be interested in purchasing. Information is deemed reliable but is not guaranteed accurate by the MLS or Jerry Pinkas Real Estate Experts, Inc. The data relating to real estate for sale or lease on this web site comes in part from CCAR. Real estate listings held by brokerage firms other than Jerry Pinkas Real Estate Experts, Inc are marked with the CCAR logo or an abbreviated logo and detailed information about them includes the name of the listing broker. Data last updated: 2026-03-14T07:21:36.567.
 
https://bt-photos.global.ssl.fastly.net/ccar/orig_boomver_1_2603059-2.jpg
Logo
Jerry Pinkas Real Estate Experts, Inc
604 N 27th Ave
Myrtle Beach SC, 29579