Skip To Content

2736 Tranquility Loop

Longs, SC 29568
  • $429,990
  • STATUS: Active Under Contract
  • ON SITE: 44 Days
  • MLS #: 2602097
Under Contract
UPDATED: 95 min ago
$429,990
  • 4
    BEDS
  • 0.14
    ACRES
  • 3
    BATHS
  • 0
    1/2 BATHS
  • 2,001
    SQFT
  • $215
    $/SQFT
Neighborhood:
Type:
Single-Family Home
Built:
2025
County:

School Information

Description

Brand new, energy-efficient home available by Feb 2026! Entertain with ease in the Gibson's bright, open-concept living space. A secondary bath with dual sinks serves both secondary bedrooms, while the private primary suite boasts a walk-in shower and impressive closet. From exciting attractions to relaxing weekends along sandy beaches and serene golf courses, Waterside offers easy access to the best shopping, dining and entertainment in North Myrtle Beach. Our new one- and two-story homes are perfect for any lifestyle. And when you are not out exploring, enjoy luxurious amenities including swimming pool, sports courts, day dock and much more. Each of our homes is built with innovative, energy-efficient features designed to help you enjoy more savings, better health, real comfort and peace of mind.

Monthly Payment Calculator



Coastal Carolina Association of Realtors logo© 2026 Coastal Carolinas Association of REALTORS® MLS. All rights reserved. IDX information is provided exclusively for consumers' personal, non-commercial use and may not be used for any purpose other than to identify prospective properties consumers may be interested in purchasing. Information is deemed reliable but is not guaranteed accurate by the MLS or Jerry Pinkas Real Estate Experts, Inc. The data relating to real estate for sale or lease on this web site comes in part from CCAR. Real estate listings held by brokerage firms other than Jerry Pinkas Real Estate Experts, Inc are marked with the CCAR logo or an abbreviated logo and detailed information about them includes the name of the listing broker. Data last updated: 2026-03-09T00:20:41.083.
www.homeguidemyrtlebeach.com/homes/172412262
Print Image

2736 Tranquility Loop Longs, SC 29568

  • Price: $429,990
  • Status: Active Under Contract
  • On Site: 44 Days
  • Updated: 95 min ago
  • MLS #: 2602097
4
Beds
3
Baths
0
½ Baths
0.14
Acres
2,001
SQFT
$215
$/SQFT
2025
Built
Neighborhood:
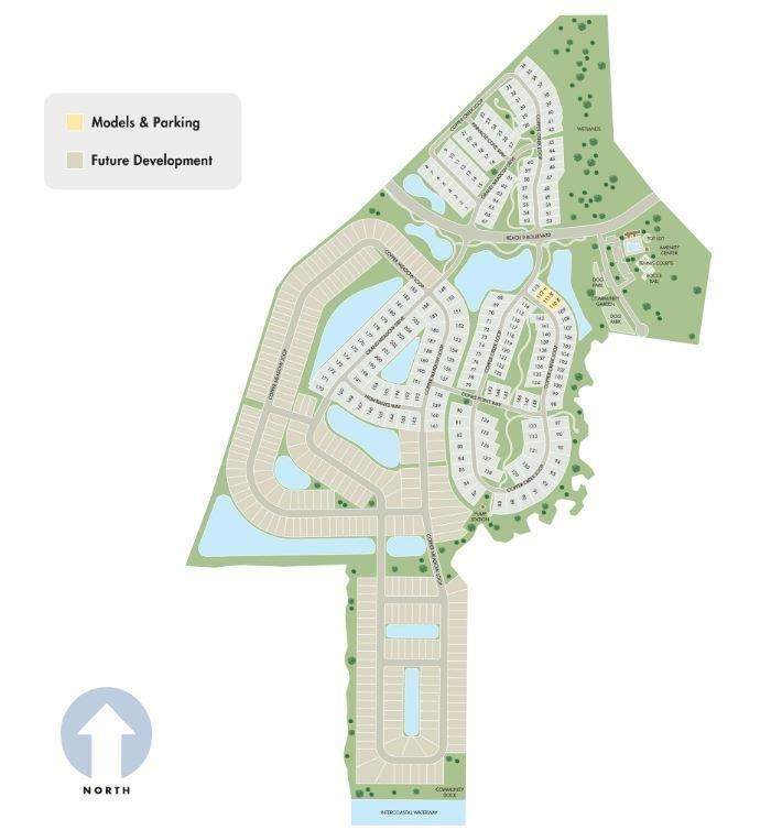
Waterside - Area 10A
County:
Horry
Area:
10A Conway To Myrtle Beach Area--Between 90 & Waterway Redhill/Grande Dunes
Elementary School:
Myrtle Beach Elementary School
Middle School:
Myrtle Beach Middle School
High School:
Myrtle Beach High School
Property Description
Brand new, energy-efficient home available by Feb 2026! Entertain with ease in the Gibson's bright, open-concept living space. A secondary bath with dual sinks serves both secondary bedrooms, while the private primary suite boasts a walk-in shower and impressive closet. From exciting attractions to relaxing weekends along sandy beaches and serene golf courses, Waterside offers easy access to the best shopping, dining and entertainment in North Myrtle Beach. Our new one- and two-story homes are perfect for any lifestyle. And when you are not out exploring, enjoy luxurious amenities including swimming pool, sports courts, day dock and much more. Each of our homes is built with innovative, energy-efficient features designed to help you enjoy more savings, better health, real comfort and peace of mind.
Exterior Features

Architectural Style Ranch Attached Garage YN Yes Construction Materials Brick Veneer Hardi Plank Type Exterior Features Porch Foundation Details Slab Garage YN Yes Lot Features City Lot Rectangular Rectangular Lot Parking Features Attached Garage Two Car Garage Garage Door Opener Parking Total 4 Patio And Porch Features Rear Porch Front Porch Pool Features Community Outdoor Pool Property Attached YN No

Interior Features

Appliances Dishwasher Disposal Microwave Range Hood Cooling Central Air Cooling YN Yes Flooring Carpet Tile Vinyl Furnished Unfurnished Heating Electric Heating YN Yes Interior Features Attic Tray Ceiling(s) Dual Sinks Linen Closet Main Level Primary Pull Down Attic Stairs Permanent Attic Stairs Separate Shower Walk- In Closet(s) Entrance Foyer Stainless Steel Appliances Solid Surface Counters Laundry Features Washer Hookup Levels One Rooms Primary Bathroom (Dual SinksSeparate Shower) Kitchen (Kitchen Exhaust FanPantryStainless Steel AppliancesSolid Surface Counters) Dining Room Bedroom 3 Bedroom 2 Other (Entrance Foyer) Primary Bedroom (First Level Tray Ceiling(s)Linen ClosetMain Level PrimaryWalk-In Closet(s)) Bedroom 1

Property Features

Association Amenities Clubhouse Tennis Court(s) Association Fee 106 Association Fee Frequency Monthly Association Fee Includes Common Areas Recreation Facilities Association YN Yes Builder Model Gibson Builder Name Meritage Homes Community Features Clubhouse Recreation Area Tennis Court(s) Long Term Rental Allowed Pool Home Warranty YN Yes Lease Considered YN No Listing Terms Cash Conventional Location Inside City Limits Property Condition Under Construction Property Sub Type Detached Property Sub Type Additional Detached Security Features Smoke Detector(s) Special Listing Conditions None Utilities Electricity Available Natural Gas Available Sewer Available Underground Utilities Water Available Water Source Public Zoning RES

Coastal Carolina Association of Realtors logo Listing information © 2026 Coastal Carolinas Association of REALTORS® MLS. Listing provided by Meritage Homes of the Carolina:.


Coastal Carolina Association of Realtors logo© 2026 Coastal Carolinas Association of REALTORS® MLS. All rights reserved. IDX information is provided exclusively for consumers' personal, non-commercial use and may not be used for any purpose other than to identify prospective properties consumers may be interested in purchasing. Information is deemed reliable but is not guaranteed accurate by the MLS or Jerry Pinkas Real Estate Experts, Inc. The data relating to real estate for sale or lease on this web site comes in part from CCAR. Real estate listings held by brokerage firms other than Jerry Pinkas Real Estate Experts, Inc are marked with the CCAR logo or an abbreviated logo and detailed information about them includes the name of the listing broker. Data last updated: 2026-03-09T00:20:41.083.
 
https://bt-photos.global.ssl.fastly.net/ccar/1280_boomver_1_2602097-2.jpg https://bt-photos.global.ssl.fastly.net/ccar/1280_boomver_1_2602097-2.jpg https://bt-photos.global.ssl.fastly.net/ccar/1280_boomver_1_2602097-2.jpg
Logo
Jerry Pinkas Real Estate Experts, Inc
604 N 27th Ave
Myrtle Beach SC, 29579